
BY SARAH STEPHENS
ELMORE/AUTAUGA NEWS
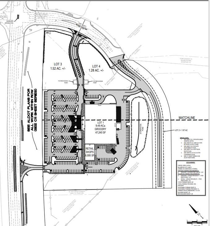
The Millbrook City Council approved a site plan for the Camp Grandview Retail Center where Publix will soon be located at their last regular meeting Tuesday. The property has already seen a tremendous amount of dirt work in the past few months. The location is to the right of Walmart in Millbrook.
An engineer for the project was at the regular meeting to answer any questions. Josh Donnell said Publix has also approved the site plan, and ALDOT permits have been approved.
A tremendous amount of work has done before construction actually begins, as a hill had to be removed and flattened prior to construction.
According to Anita Weaver, this is just another step towards the project becoming reality.
Building plans for the facility are still under review, Weaver said.
“It is a great site,” Stuart Peters said. “It is actually a nine-and-a-half-acre development lot, along with two out parcels with a right of way in the back. What you see right now is all the dirt work.”
The Publix store will come in under just 50,000 square feet. There are additional square feet which will comprise separate, smaller business space.
In other business:
Three public assembly permits were issued by the Council for upcoming events.
They include:
Praise in the Park for April 29 from 2 to 4 p.m. at Village Green. Multiple churches have joined forces for a community prayer event, with live music, free food and more.
Dodd “Car Show” will be held Nov. 4 from 6 a.m. to 4 p.m. at Village Green Park.
Millbrook Farmers Market – The Millbrook Farmer’s Market season will kick off every Tuesday from May 16 to August 15.
Last year, the city incorporated a few Saturday events during the season, but that will not continue this year. Saturdays were not working out, officials said, as vendors had prior commitments with other farmer’s markets for Saturday. The market will be open at the Village Green Park each Tuesday from 6 a.m. to 1 p.m.





