Malia Riggs
Elmore Autauga News
The Prattville Planning Commission, with the approval of petitioner Rausch Coleman Homes, opted to postpone the vote on the Planned Unit Development Master Plan, PUD, as well as the proposed rezoning from R-3 to PUD.
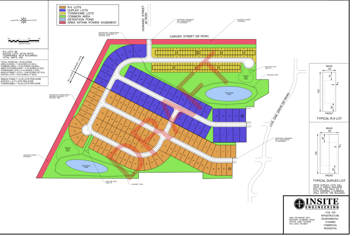
The proposed new neighborhood is 53.9 acres and if approved, will be built just east of the Bamboo Forest at west of Carver Street, north of Dunivegan Drive and Portree Drive. Within the new project, the land acquisition manager for Rausch Coleman Homes Jack Estes addressed concerns citizens during the public hearing as well as the commission with questions.
“Rausch Coleman Homes has been around for a little over 65 years, as originally founded in Fort Smith, Arkansas. Currently, we’re building in seven states, headquartered out of Arkansas. We’ve been in Alabama for about seven years now and have built roughly 2,000 to 3,000 homes in the time that we’ve been in Alabama,” Estes said.
Estes confirmed that this will be geared towards single family homes only, and confirmed that there are no plans to build any build to rent type neighborhoods for this project or in the future. Estes stated they have not been building any build to rent style neighborhoods in the time that they have been in Alabama.
This will be a build to buy catering to multiple types and styles of families in the River Region, with a price point starting in the $200,000 Estes stated. Estes also confirmed that the new project would be governed by an HOA, keeping regulations up to date and keeping properties within those regulations as other HOA’s do.
“It is proposed to be single -family residential with garden homes, duplexes, and townhomes. The future land use map does have this area set for medium-density residential,” Estes said.
Many members of surrounding subdivisions and communities voiced their concerns during the public hearing portion of the meeting. Stating that their concerns center around the influx of traffic if this were to be built, infrastructure issues and concerns centering around the clearing of the land. Many residents voiced their concerns about the influx of critters and other animals that could be pushed into the yards of surrounding homes.
While members of the community voiced that they are not opposing the new project, however the preliminary PUD and the zoning amendment from R-3 to PUD was tabled until the October 13th meeting.
It was unanimously voted to be tabled until the next meeting, where members of the planning commission had concerns regarding the green spaces with a lack of playgrounds for proposed families and the high density in which the preliminary plan indicates, even though they are within the comprehensive plan regulation.
Estes stated that Rausch Coleman Homes would gladly work with the Planning Commission, the City of Prattville as well as nearby concerned residents to ensure that everyone is satisfied in years to come.














